
螺霸王展览馆核心景观——碗里江山
四部门联袂推动“螺蛳粉文化体验游”全国首发
全国第一条智能化、自动化、数字化、可视化
集工业观光旅游为一体的螺蛳粉工厂
3月30日,由柳州市文化广电和旅游局、市商务局、市工信局、鱼峰区政府主办、广西螺霸王食品科技有限公司协办的“2021年柳州市工业旅游精品线路暨螺蛳粉文化体验游首发仪式”活动,在柳州鱼峰区螺霸王洛维产业园举行。
螺霸王洛维产业园占地53.98亩,投资4.5亿元,车间建成总面积达8万平方米,日产达150万包。在目前柳州螺蛳粉企业中是规模最大、车间内生产线的自动化、智能化、可视化、数据化程度最高的工厂。
这哪里是螺蛳粉工厂?简直就是艺术馆!
柳州第一家螺蛳粉企业文化馆
为了打造“螺蛳粉之旅”,螺霸王专门开辟1200多平方米建设螺霸王文化展览馆,投资1000多万元,这是柳州第一家螺蛳粉企业文化馆。


整个展览馆取形于螺蛳,平面布局以八颗螺蛳展开构思,内含八个主题,讲述着柳州螺蛳粉前世今生,以及螺霸王从0至1的工业化研发技改历程,从当年四百平方米纯手工作坊到七千平方米厂房、再发展到八万平方米产业园的企业发展史。可说是一个螺霸王,浓缩着半部柳州螺蛳粉工业史。

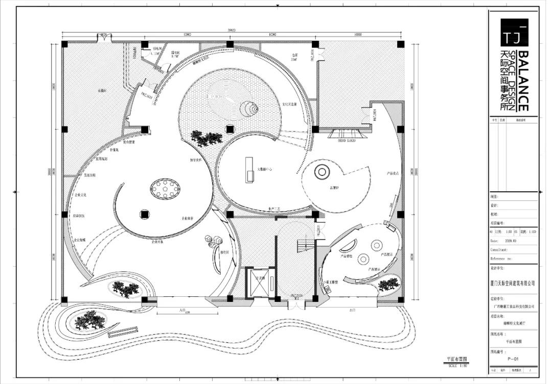
展览馆整体设计图



展览馆——文化区


展览馆—产品卖点区

展览馆—大数据区
特别值得一提的是,在展览馆内,螺霸王用大数据管控着整条产业链,展示了柳州螺蛳粉工业已经在智能智造、科技创新领域实现了自动化、信息化高质量管理。站在这块占据整个墙面、长约17米的巨屏面前,你会看到令人震撼的一幕:
通过信息传输,一方面将产业园内各项生产数据实时传送下来,通过云计算分析产品合格率、检验情况、设备能耗,以及生产环境的检测,每个车间、生产线上每个环节,纤毫毕现地显示在大屏上。
另一方面,从柳州到全国各地乃至海外的销售大数据,能实时反馈回来,哪个省市区域、哪个产品的销售情况,全部以滚动数据,呈现在排行榜上,一目了然。


柳州第一条智能化、自动化、可视化工厂

参观文化馆之后,进入车间,这里专门设置了一条贯穿整条生产线的贵宾参观通道,长近200米,游客可透过玻璃,将车间内自动化、智能化、数据化的工业生产线尽收眼底,可全程观摩“一碗粉和九种配料”的生产过程,目前它代表了柳州螺蛳粉工业化的最高水准和最大产能。


走过这条参观通道,相当于一次科普,它展示了柳州螺蛳粉工业是如何从路边摊演化、从0到1、从手工到半自动、再到两化融合、智能智造、科技创新的工业发展史。
有朋自远方来,不妨来螺蛳粉会客厅,有特色,有面子,还省钱
螺蛳粉体验馆(含螺蛳粉自助餐厅、螺蛳粉火锅宴)


在参观工厂之后,还可到螺霸王专门打造的两层可同时容纳400人的螺蛳粉特色主题自助体验餐厅就餐。



体验馆对外承接日常就餐,有大停车场、贵宾包厢,是一个具有柳州城市特色的接待中心,可以说是柳州螺蛳粉会客厅,带朋友游生产线、逛文化馆、然后扎进体验馆,让外地朋友亲自动手,体验自助螺蛳粉和品尝螺霸王独创的螺蛳粉火锅,岂不乐乎?
螺蛳粉之旅是集文化旅游、产学研合作、体验于一体的独特行程,是柳州工业旅游向世界展示城市名片的又一个新的“窗口”,也是具有爆点的潜力“网红”打卡点。
在地理的优势上,螺霸王产业园紧连着柳州白莲洞景区,白莲洞“柳江人”遗址处,展览有出土的大量螺蛳化石,印证上古时期“柳江人”已有上万年的食螺文化,这一历史现场和现代工业化的柳州螺蛳粉形成了最好的时空回应,这将是一条潜力无限的“黄金线路”。
今年柳州提出要培育4个千亿级产业集群,其中以柳工为龙头培育机械千亿级产业集群;以螺霸王等企业为龙头,培育轻工千亿级产业集群。螺蛳粉产业从去年破百亿,今年冲向五百亿,再准备培育千亿级产业集群。
在这场波澜壮阔的产业发展中,柳州市政府及各部委办局一直在拼,可以说这是一个由政府引领打开的螺蛳粉产业市场,让25万从业人员在螺蛳粉产业中分享了红利。这一次,由市文化广电和旅游局、商务局、工信局、鱼峰区政府联合发布的“工业旅游精品线路暨螺蛳粉文化体验游”,为全国全市全行业再次奉献了一份独特的城市“网红大餐”。
3月30日,2021年柳州市工业旅游精品线路暨螺蛳粉文化体验游首发仪式,将在柳州市鱼峰区柳石路洛维工业园葡萄山路1号——螺霸王洛维产业园,盛大开启。
开馆之后,螺霸王产业园可接待国内旅行团、单位、广大游客,有接待规模达400人的螺蛳粉自助餐厅。有兴趣的单位和游客,需提前预约。
螺霸王文化产业园预约接待电话:
18107727555

客服微信号
螺霸王产业园微信公众号
【参观地址】
广西螺霸王食品科技有限公司
广西壮族自治区柳州市鱼峰区葡萄山路1号

【打印正文】



